Cad-Projects - Especificaciones Norma NTE-IPF - INSTALACIONES/DE PROTECCION/CONTRA EL FUEGO
Ver Perfil
Conectate para poder poner tu imagen de perfil.

Aún no estas conectado.

Utiliza tu nombre y clave para hacerlo. Si todavía no tienes una Pincha aquí para iniciar el registro.

Recursos

Estas en:

Recursos› Normativa › Normas Tecnológicas (NTE) ›Especificaciones

Especificaciones, Simbologia y Detalles de las Normas Tecnológicas (NTE).

 

NORMAS TECNOLOGICAS (NTE)

Las normas tecnológicas de la edificación son una completa colección de recomendaciones técnicas perfectamente clasificadas que dan solución a la gran mayoría de los "Casos" más comunes en Arquitectura.

 

A cada "Caso" en concreto se le denomina mediante una “especificación” de tres letras, que nos indican la "Familia", "Subfamilia" y "Norma" seguidas de un numero que lo ordena dentro de la norma. Por ejemplo la especificación EAS-6 seria la recomendación para los Soportes empresillados dentro de la Normas “S” sobre Soportes, de la Familia “E” Estructuras, y la Subfamilia “A” de Acero.

 

Así que conociendo esta clasificación, si nos hallamos en el caso de necesitar solución para un soporte de acero en la norma EAS Estructuras de Acero Soportes encontraremos, por ejemplo, una solución para soportes empresillados, la EAS-6.


 

Existen ocho grandes familias, denominadas por su letra inicial (excepto la Q de Cubiertas para diferenciarla de la C de Cimentaciones), que contienen varias Subfamilias que a su vez contienen varias normas hasta llegar a casi 160 normas diferentes, todo un compendio sobre construcción y arquitectura que todo proyectista o diseñador debería, aparte de conocer, tenerlo siempre a mano.



Norma:
NTE-IPF - INSTALACIONES - DE PROTECCION - CONTRA EL FUEGO



Organo:
MINISTERIO DE LA VIVIENDA (BOE n. 53 de 2/3/1974)

Documento:
ORDEN DE 26 DE FEBRERO DE 1974, POR LA QUE SE APRUEBA LA NORMA TECNOLOGICA DE EDIFICACION NTE-IPF/1974, "INSTALACIONES DE PROTECCION CONTRA EL FUEGO".

Especificaciones:
  -IPF-01 - Mortero aislante
  -IPF-02 - Chapa
  -IPF-03 - Protector de ala
  -IPF-04 - Extintor manual
  -IPF-05 - Tapa para hidrantes interiores
  -IPF-06 - Tapa para hidrantes exteriores
  -IPF-07 - Llave de seccion
  -IPF-08 - Conexión siamesa
  -IPF-09 - Racor de boca de incendio
  -IPF-10 - Equipo de manguera
  -IPF-11 - Rociador
  -IPF-12 - Placa de orificio
  -IPF-13 - Equipo de alarma
  -IPF-14 - Central de señalizacion de rociadores
  -IPF-15 - Detector de humos
  -IPF-16 - Detector de temperatura
  -IPF-17 - Central de señalizacion de detectores
  -IPF-18 - Revestimiento de soporte de acero con panderete
  -IPF-19 - Revestimiento de soporte de acero con tabicon
  -IPF-20 - Revestimiento de soporte de acero con citara de ladrillo hueco
  -IPF-21 - Revestimiento de soporte de acero con citara de ladrillo macizo
  -IPF-22 - Revestimiento de soporte de acero con mortero aislante y chapa
  -IPF-23 - Revestimiento de soporte de acero con mortero aislante, chapa y tela metalica
  -IPF-24 - Revestimiento de soporte de acero con mortero aislante
  -IPF-25 - Revestimiento de soporte mixto o de hormigon con mortero aislante
  -IPF-26 - Revestimiento de viga de acero con fabrica de ladrillo
  -IPF-27 - Revestimiento de viga de acero con mortero aislante y chapa
  -IPF-28 - Revestimiento de viga de acero con mortero aislante, chapa y tela metalica
  -IPF-29 - Revestimiento de viga de acero con mortero aislante
  -IPF-30 - Revestimiento de viga mixta con mortero aislante y chapa
  -IPF-31 - Revestimiento de viga mixta con mortero aislante, chapa y tela metalica
  -IPF-32 - Revestimiento de viga mixta con mortero aislante
  -IPF-33 - Revestimiento de viga de hormigon armado con mortero aislante
  -IPF-34 - Revestimiento de forjados de acero con mortero aislante
  -IPF-35 - Revestimiento de forjados de acero con mortero aislante y tela metalica
  -IPF-36 - Revestimiento de losa de hormigon armado con mortero aislante
  -IPF-37 - Revestimiento de forjado de hormigon con mortero aislante
  -IPF-38 - Extintor manual colocado-T
  -IPF-39 - Boca de columna seca
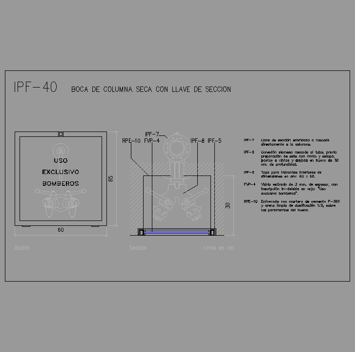
  -IPF-40 - Boca de columna con llave de seccion
  -IPF-41 - Toma de alimentacion
  -IPF-42 - Boca de incendio
  -IPF-43 - Equipo de manguera instalado
  -IPF-44 - Rociador instalado
  -IPF-45 - Placa de orificio colocada
  -IPF-46 - Equipo de alarma instalado-D
  -IPF-47 - Central de señalizacion de rociadores instalada-N
  -IPF-48 - Detector de humos colocado
  -IPF-49 - Detector de temperatura colocado
  -IPF-50 - Central de señalizacion de detectores instalada-N
  -IPF-51 - Linea de señalizacion empotrada
  -IPF-52 - Linea de señalizacion vista

Simbologia

Leyenda contraincendios

Bloque Autocad Leyenda contraincendios

Leyenda contraincendios

IPF-07

Bloque Autocad Llave de sección

Llave de sección

IPF-18

Bloque Autocad Revestimiento de soporte de acero con panderete

Revestimiento de soporte de acero con panderete

IPF-19

Bloque Autocad Revestimiento de soporte de acero con tabicón

Revestimiento de soporte de acero con tabicón

IPF-20

Bloque Autocad Revestimiento de soporte de acero con citara de ladrillo hueco

Revestimiento de soporte de acero con citara de ladrillo hueco

IPF-21

Bloque Autocad Revestimiento de soporte de acero con citara de ladrillo macizo

Revestimiento de soporte de acero con citara de ladrillo macizo

IPF-22

Bloque Autocad Revestimiento de soporte de acero con mortero aislante y chapa

Revestimiento de soporte de acero con mortero aislante y chapa

IPF-23

Bloque Autocad Revestimiento de soporte de acero con mortero aislante, chapa y tela metálica

Revestimiento de soporte de acero con mortero aislante, chapa y tela metálica

IPF-24

Bloque Autocad Revestimiento de soporte de acero con mortero aislante

Revestimiento de soporte de acero con mortero aislante

IPF-25

Bloque Autocad Revestimiento de soporte mixto o de hormigón con mortero aislante

Revestimiento de soporte mixto o de hormigón con mortero aislante

IPF-26

Bloque Autocad Revestimiento de viga de acero con fabrica de ladrillo

Revestimiento de viga de acero con fabrica de ladrillo

IPF-27

Bloque Autocad Revestimiento de viga de acero con mortero aislante y chapa

Revestimiento de viga de acero con mortero aislante y chapa

IPF-28

Bloque Autocad Revestimiento de viga de acero con mortero aislante, chapa y tela metálica

Revestimiento de viga de acero con mortero aislante, chapa y tela metálica

IPF-29

Bloque Autocad Revestimiento de viga de acero con mortero aislante

Revestimiento de viga de acero con mortero aislante

IPF-30

Bloque Autocad Revestimiento de viga mixta con mortero aislante y chapa

Revestimiento de viga mixta con mortero aislante y chapa

IPF-31

Bloque Autocad Revestimiento de viga mixta con mortero aislante, chapa y tela metálica

Revestimiento de viga mixta con mortero aislante, chapa y tela metálica

IPF-32

Bloque Autocad Revestimiento de viga mixta con mortero aislante

Revestimiento de viga mixta con mortero aislante

IPF-33

Bloque Autocad Revestimiento de viga de hormigón armado con mortero aislante

Revestimiento de viga de hormigón armado con mortero aislante

IPF-34

Bloque Autocad Revestimiento de forjados de acero con mortero aislante

Revestimiento de forjados de acero con mortero aislante

IPF-35

Bloque Autocad Revestimiento de forjados de acero con mortero aislante y tela metálica

Revestimiento de forjados de acero con mortero aislante y tela metálica

IPF-36

Bloque Autocad Revestimiento de losa de hormigón armado con mortero aislante

Revestimiento de losa de hormigón armado con mortero aislante

IPF-37

Bloque Autocad Revestimiento de forjado de hormigón con mortero aislante

Revestimiento de forjado de hormigón con mortero aislante

IPF-38

Bloque Autocad Extintor manual colocado-T

Extintor manual colocado-T

IPF-38_A

Bloque Autocad Extintor

Extintor

IPF-38_B

Bloque Autocad Extintor

Extintor

IPF-38_C

Bloque Autocad Extintor

Extintor

IPF-38_D

Bloque Autocad Extintor

Extintor

IPF-38_E

Bloque Autocad Extintor

Extintor

IPF-38_F

Bloque Autocad Extintor

Extintor

IPF-39

Bloque Autocad Boca de columna seca

Boca de columna seca

IPF-40

Bloque Autocad Boca de columna con llave de sección

Boca de columna con llave de sección

IPF-41

Bloque Autocad Toma de alimentación

Toma de alimentación

IPF-42

Bloque Autocad Boca de incendio

Boca de incendio

IPF-43

Bloque Autocad Equipo de manguera instalado

Equipo de manguera instalado

IPF-44

Bloque Autocad Rociador instalado

Rociador instalado

IPF-45

Bloque Autocad Placa de orificio colocada

Placa de orificio colocada

IPF-46

Bloque Autocad Equipo de alarma instalado-D

Equipo de alarma instalado-D

IPF-47

Bloque Autocad Central de señalización de rociadores instalada-N

Central de señalización de rociadores instalada-N

IPF-48

Bloque Autocad Detector de humos colocado

Detector de humos colocado

IPF-49

Bloque Autocad Detector de temperatura colocado

Detector de temperatura colocado

IPF-50

Bloque Autocad Central de señalización de detectores instalada-N

Central de señalización de detectores instalada-N

Detalles Constructivos

IPF-18

Bloque Autocad Revestimiento de soporte de acero con panderete

Revestimiento de soporte de acero con panderete

IPF-19

Bloque Autocad Revestimiento de soporte de acero con tabicón

Revestimiento de soporte de acero con tabicón

IPF-20

Bloque Autocad Revestimiento de soporte de acero con citara de ladrillo hueco

Revestimiento de soporte de acero con citara de ladrillo hueco

IPF-21

Bloque Autocad Revestimiento de soporte de acero con citara de ladrillo macizo

Revestimiento de soporte de acero con citara de ladrillo macizo

IPF-22

Bloque Autocad Revestimiento de soporte de acero con mortero aislante y chapa

Revestimiento de soporte de acero con mortero aislante y chapa

IPF-23

Bloque Autocad Revestimiento de soporte de acero con mortero aislante, chapa y tela metálica

Revestimiento de soporte de acero con mortero aislante, chapa y tela metálica

IPF-24

Bloque Autocad Revestimiento de soporte de acero con mortero aislante

Revestimiento de soporte de acero con mortero aislante

IPF-25

Bloque Autocad Revestimiento de soporte mixto o de hormigón con mortero aislante

Revestimiento de soporte mixto o de hormigón con mortero aislante

IPF-26

Bloque Autocad Revestimiento de viga de acero con fabrica de ladrillo

Revestimiento de viga de acero con fabrica de ladrillo

IPF-27

Bloque Autocad Revestimiento de viga de acero con mortero aislante y chapa

Revestimiento de viga de acero con mortero aislante y chapa

IPF-28

Bloque Autocad Revestimiento de viga de acero con mortero aislante, chapa y tela metálica

Revestimiento de viga de acero con mortero aislante, chapa y tela metálica

IPF-29

Bloque Autocad Revestimiento de viga de acero con mortero aislante

Revestimiento de viga de acero con mortero aislante

IPF-30

Bloque Autocad Revestimiento de viga mixta con mortero aislante y chapa

Revestimiento de viga mixta con mortero aislante y chapa

IPF-31

Bloque Autocad Revestimiento de viga mixta con mortero aislante, chapa y tela metálica

Revestimiento de viga mixta con mortero aislante, chapa y tela metálica

IPF-32

Bloque Autocad Revestimiento de viga mixta con mortero aislante

Revestimiento de viga mixta con mortero aislante

IPF-33

Bloque Autocad Revestimiento de viga de hormigón armado con mortero aislante

Revestimiento de viga de hormigón armado con mortero aislante

IPF-34

Bloque Autocad Revestimiento de forjados de acero con mortero aislante

Revestimiento de forjados de acero con mortero aislante

IPF-35

Bloque Autocad Revestimiento de forjados de acero con mortero aislante y tela metálica

Revestimiento de forjados de acero con mortero aislante y tela metálica

IPF-36

Bloque Autocad Revestimiento de losa de hormigón armado con mortero aislante

Revestimiento de losa de hormigón armado con mortero aislante

IPF-37

Bloque Autocad Revestimiento de forjado de hormigón con mortero aislante

Revestimiento de forjado de hormigón con mortero aislante

IPF-38

Bloque Autocad Extintor manual colocado-T

Extintor manual colocado-T

IPF-39

Bloque Autocad Boca de columna seca

Boca de columna seca

IPF-40

Bloque Autocad Boca de columna con llave de sección

Boca de columna con llave de sección

IPF-41

Bloque Autocad Toma de alimentación

Toma de alimentación

IPF-42

Bloque Autocad Boca de incendio

Boca de incendio

IPF-43

Bloque Autocad Equipo de manguera instalado

Equipo de manguera instalado

IPF-44

Bloque Autocad Rociador instalado

Rociador instalado

IPF-45

Bloque Autocad Placa de orificio colocada

Placa de orificio colocada

IPF-48

Bloque Autocad Detector de humos colocado

Detector de humos colocado

IPF-49

Bloque Autocad Detector de temperatura colocado

Detector de temperatura colocado

Comentarios de Usuarios

Comentarios de Usuarios:

 

Si tienes alguna cuestión por resolver o deseas enviarnos tu opinión puedes hacerlo desde aquí. Pincha en la pestaña "Enviar Comentarios" y manda tu mensaje. Cualquier usuario podrá responderte, y esperamos que en poco tiempo sean resueltas tus dudas.

 

Tu mensaje además de publicarse en la web sera enviado a traves de correo electrónico a nuestra dirección
info@cad-projects.org para que sea atendido por nuestro equipo lo antes posible.



 

Todavía no hay Comentarios.


Enviar Comentarios

 

Recuerda que antes debes estar conectado con tu nombre de usuario y clave. Si todavía no te has registrado Pincha aquí para iniciar el registro. Pincha sobre el siguiente enlace para conocer mas sobre el Proceso de Registro. Al publicar un mensaje estas de acuerdo con nuestras Condiciones de uso.



Enviar Comentarios:

 

 Asunto (max. 200 caracteres):

 

 Mensaje (max. 3000 caracteres):

Puedes dar formato al texto para que tenga el estilo de nuestra pagina. Para ello utiliza los estilos de encabezamiento existentes numerados del 1 al 6 . Tambien puedes insertar imagenes conociendo su url, pero al fijar las dimensiones procura que el ancho no supere los 700 pixels. Si estas familiarizado con el codigo HTML utiliza el boton "html" para dar formato a tu mensaje.

TinyMCE - Javascript WYSIWYG Editor independent platform web based Javascript HTML WYSIWYG editor control released as Open Source under LGPL by Moxiecode Systems AB.

 

 Puntua el articulo, nos interesa tu opinion para poder seguir mejorando: 12345

 

 

 Captcha:

Escribe el código que se ve en la imagen lateral distinguiendo entre mayusculas y minusculas. El reconocimiento de captcha se utiliza para evitar envios automatizados masivos.
Securimage is an open-source free PHP CAPTCHA script

Recarga
la imagen si no se lee bien.




Ver Perfil